Albergo Reggiani
![]() |
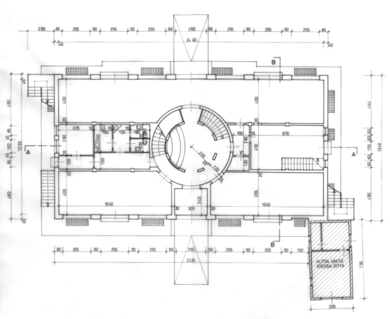
| Progetto inerente la realizzazione di un nuovo albergo, tramite completa demolizione e riconfigurazione urbanistica del preesistente edificio anch'esso ad uso ricettivo. Forte dei Marmi (LU) 1996 Presentata una richiesta di Concessione Edilizia per la realizzazione di questo progetto, dal punto di vista normativo assolutamente corretta, il comune di Forte dei Marmi espresse un netto diniego in quanto "l'edificio non si confaceva alla tradizione Fortemarmina", parere espresso dalla Commissione Esperti Ambientali. |
![]() |
![]() |
![]() |
![]() |
![]() |





